Ranger School project to renovate physical plant, add security system
Spring 2017 Issue
Ranger School project to renovate physical plant, add security system

The ESF Ranger School is about to undergo the first significant update to its physical facilities since a major renovation 15 years ago.
During the next year, the $2.3 million project will update the main building entrances, replace old storm and sewage lines and improve the physical plant building.
Dr. Michael Bridgen, director of the Ranger School, said an electronic security system will be added to the entrances to increase student safety. “Safety is always our first concern,” he said. “We have never had a problem here, but we are interested in making it more secure.
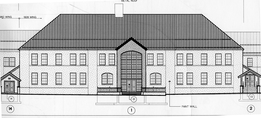
“It will make the facility more attractive, for one thing,” Bridgen said. “But it goes beyond that. We’ll also change the rooflines over some of the doors to alleviate the problems of snow sliding off near the entrances.”
Changes to the main front door will include construction of a glass-enclosed two-story entranceway that will coordinate with the newer peaked entrances over the northern and southern ends of the building.
The storm drainage and sewage lines between the main Ranger School building and the wastewater treatment plant date back several decades, Bridgen said, and need to be replaced to alleviate leaking.
Work on the physical plant building, which was constructed in the 1950s, will include a new roof, siding and some other remodeling.